Joschka Kalisch Schöne Aussicht 67 95448 Bayreuth Telefon: 0921-560408 Mobil: 01739929969 Fax: 0921-7307808 Mail: info@kaltec-net.de
Joschka Kalisch Schöne Aussicht 67 95448 Bayreuth Telefon: 0921-560408 Mobil: 01739929969 Fax: 0921-7307808 Mail: info@kaltec-net.de

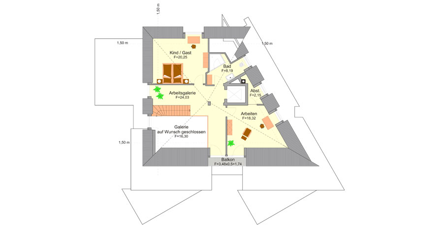
Falls Sie alle ihre grafische Unterlagen "aus einer Hand" haben möchten, bieten wir Ihnen auch kolorierte 2D- und 3D-Grundrisse an.
Home | Impressum | Datenschutz | Preise | Anfahrt
Joschka Kalisch Schöne Aussicht 67 95448 Bayreuth Telefon: 0921-560408 Mobil: 01739929969 Fax: 0921-7307808 Mail: info@kaltec-net.de